Zapraszamy do kontaktu
Zadzwoń do nas
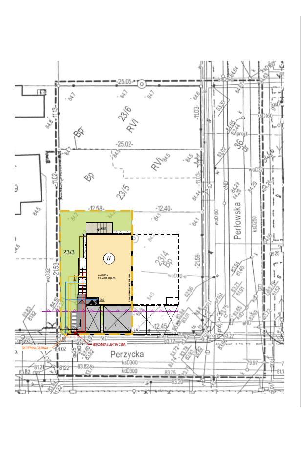
W miejscu gdzie piękne widoki łączą się w komfortem zamieszkania, doskonałą komunikacją, bliskim sąsiedztwem terenów rekreacyjnych oraz bliskością lasu w zachodniej części miasta powstała inwestycja Willa Perłowska. To budynek premium z apartamentami o podwyższonym standardzie. To miejsce z duszą i estetyką. Nasz ogród buduje klimat miejsca – to enklawa ciszy, pełna zieleni i kameralności.















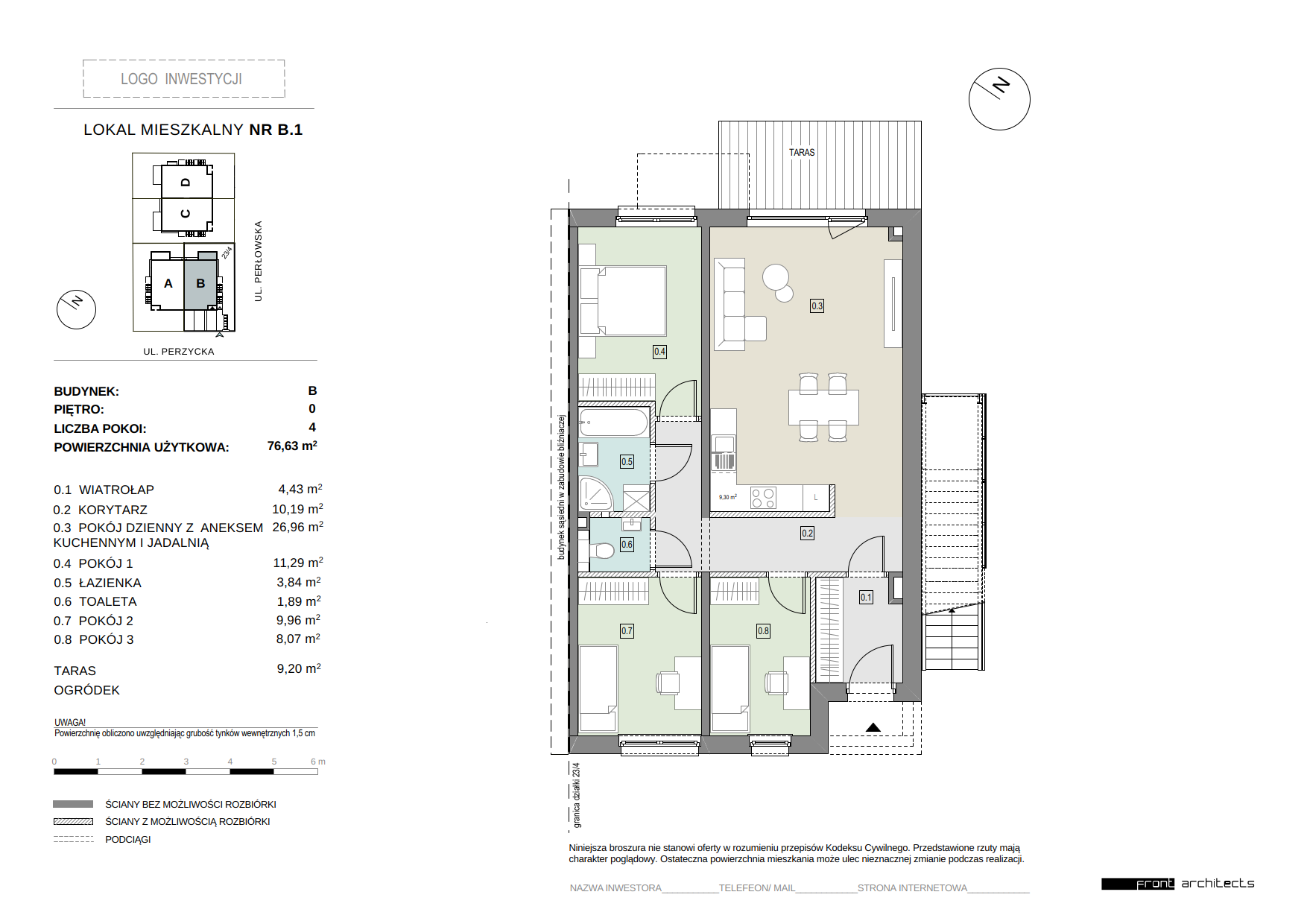
Mieszkanie o powierzchni 76,63m2, skiada się z 3 sypialni, pokoju dziennego z aneksem kuchennym, łazienki oraz toalety. Do mieszkania przynależą 2 miejsca postojowe oraz ogródek o powierzchni 62m2.



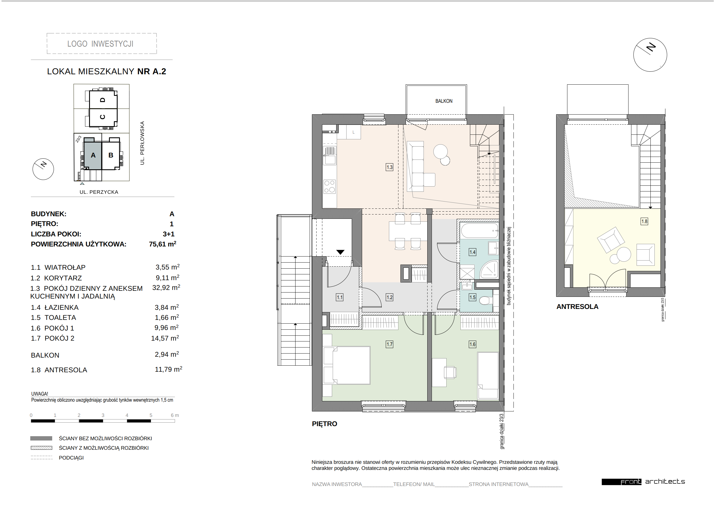
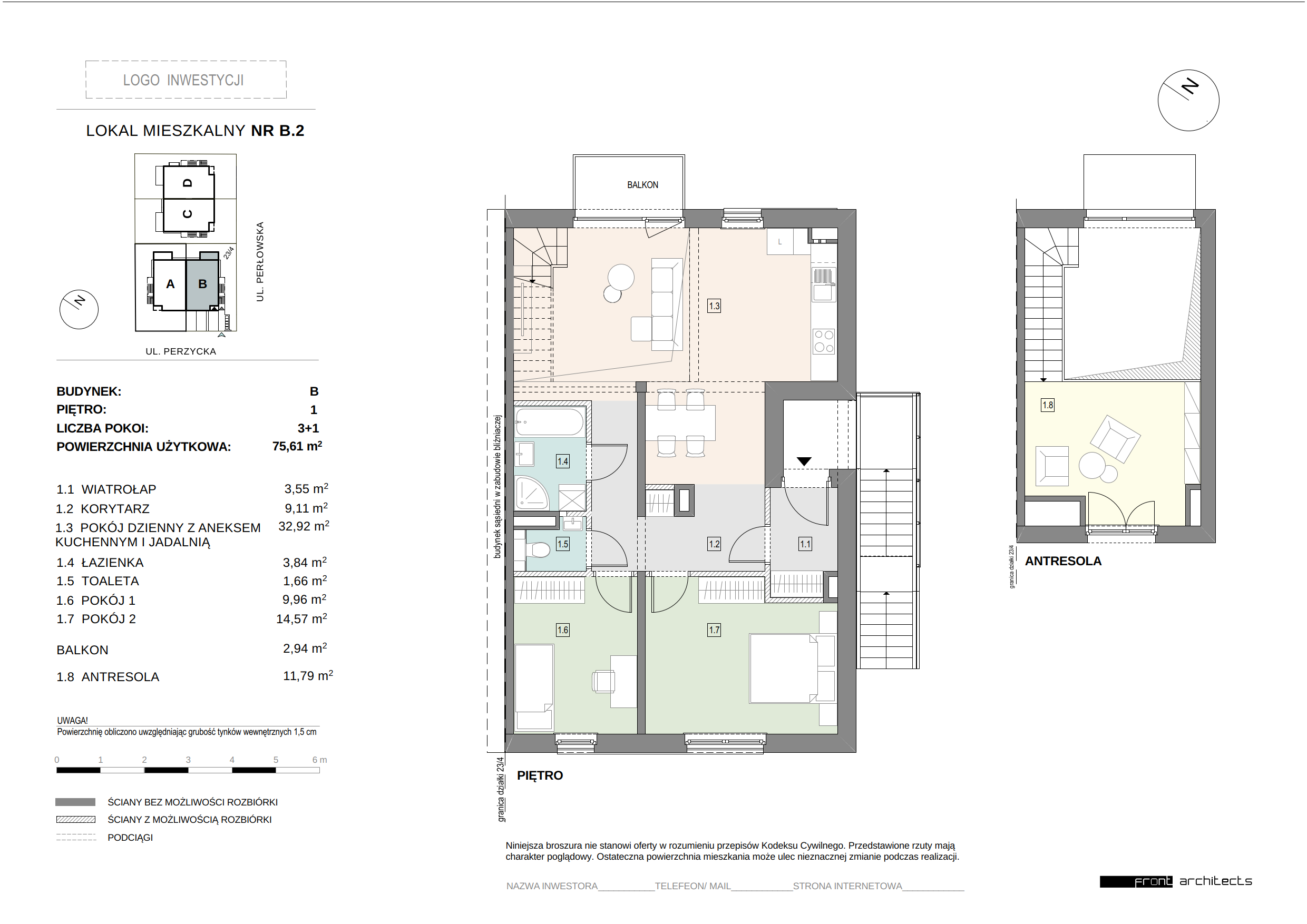
Mieszkanie o powierzchni 87,4m2, składa się z 2 sypialni, pokoju dziennego z aneksem kuchennym, łazienki, toalety oraz antresoli. Do mieszkania przynależą 2 miejsca postojowe, balkon oraz taras na dachu o powierzchni 50m2.





Mieszkanie o powierzchni 76,63m2, skiada się z 3 sypialni, pokoju dziennego z aneksem kuchennym, łazienki oraz toalety. Do mieszkania przynależą 2 miejsca postojowe oraz ogródek o powierzchni 62m2.



Mieszkanie o powierzchni 87,4m2, składa się z 2 sypialni, pokoju dziennego z aneksem kuchennym, łazienki, toalety oraz antresoli. Do mieszkania przynależą 2 miejsca postojowe, balkon oraz taras na dachu o powierzchni 50m2.



